OVERVIEW
賃貸
No.358
竹田市大字会々⑥
物件概要
-
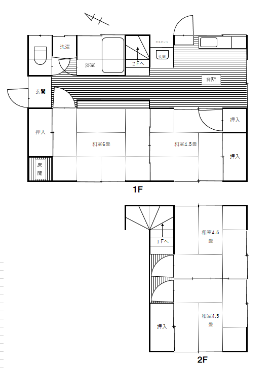
物件所在地 竹田市大字会々⑥ 形態 賃貸 教育機関等 竹田保育園:1.1km、竹田幼稚園:0.9km、竹田小学校:1.1km、竹田中学校:2.2km、竹田高校:0.6km 主要施設 志賀内科:0.3㎞、竹田市役所:0.8km、豊後竹田駅:0.5km 構造 木造セメント瓦葺2階建 延床面積 68.22㎡ 建築時期 昭和48年(令和6年風呂リフォーム) 空家時期 令和8年2月 水道 上水道 電気 九州電力 ガス 江上設備企業 風呂 ガス トイレ 単独浄化槽 特記事項 駐車場1台あり










